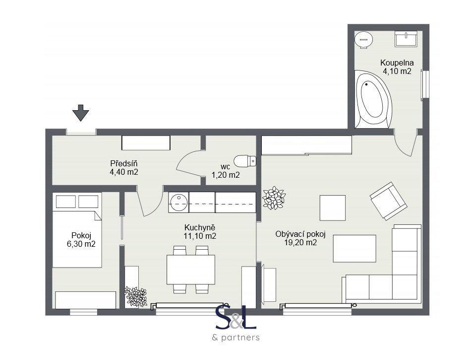
Nabízíme k prodeji byt v osobním vlastnictví s výbornou dostupností do Ústí nad Labem a s možností využívání zahrádky. Bytová jednotka je o dispozicí 2+1 s celkovou užitnou plochou 47,5 ㎡ a nachází se ve Valtířově v části obce Velké Březno. Měsíční poplatky do SVJ činní 2.674,- Kč. Byt se nachází v přízemí zděného bytového domu.
K dispozici je kuchyně, ložnice, obývací pokoj, koupelna s rohovou vanou, samostatná toaleta a chodba. Byt je vybaven kuchyňskou linkou se spotřebiči, mezi které patří sporák s troubou a myčka na nádobí.
Vytápění a ohřev vody je zajištěn kombinovaným plynovým kotlem. Rozvody vytápění jsou v mědi a radiátory byly vyměněné. Okna jsou plastová.
K bytu náleží komora umístěná na patře vedle bytu a dále sklepní kóje. Parkování je možné před domem. Velkou výhodou je možnost využívání zahrádky.
Dům se nachází přímo u autobusové zastávky, případně 480 metrů od vlakové zastávky. V obci Velké Březno nalezneme základní i mateřskou školu, poštu, obchod, restaurace. Dále zde nalezneme Labskou cyklostezku.
Vzhledem k tomu, že nebyl předán PENB, uvádíme dům v kategorii G.
V případě zájmu o bližší informace, či sjednání prohlídky kontaktujte makléře. Financování Financování bytu Vám rádi zajistíme v rámci našeho komplexního servisu.
Vlastnosti
Zařízený : Částečně
Typ budovy : Cihlová
Stav stavby : Dobrý
Vlastnictví : Osobní
Použitelná plocha : 47 m²
Sklep : ano
Patro : 1. NP
Topení : Ústřední plynové
Doprava : Vlak, Silnice, Autobus
Elektřina : 230V
Voda : Dálkový vodovod
Odpad : Veřejná kanalizace
Plyn : Plynovod
Komunikace : Asfaltová
Výtah : ne
Typ nabídky : Prodej
Typ objektu : Byty
Podtyp objektu : 2+1
Lokalita kraj : Ústecký kraj
Lokalita okres : Ústí nad Labem
Potřebujete více informací? Chcete si dohodnout prohlídku nemovitosti? Zavolejte mi nebo napište.
Jan Zima
poptavky@slpartners.cz
+420 606 070 888
Podrobné nastavení cookies
Na této webové stránce používáme soubory cookies. Podrobné informace o používání souborů cookies jsou uvedeny v Zásadách ochrany osobních údajů.
Technické cookies
Tyto soubory cookies jsou nezbytné pro správné fungování našich webových stránek, proto je není možné vypnout. Váš prohlížeč můžete nastavit tak, aby tyto soubory cookies blokoval. Upozorňujeme vás, že v takovém případě některé části webových stránek nebudou fungovat.
Analytické cookies
Tyto soubory cookies nám umožňují analyzovat využívání našich webových stránek, měřit návštěvnost a získávat další informace o provozu webových stránek. Cílem je zlepšovat výkonnost našich webových stránek.
Reklamní cookies
Tyto soubory cookies umožňují zobrazovat reklamu na základě Vašich preferencí. Využíváme je zejména proto, abychom vytvořili profil vašich zájmů a mohli se vám zobrazovat relevantní reklamy. Pokud nevyjádříte souhlas, nebudete příjemcem obsahů a reklam přizpůsobených Vašim zájmům.